Realmart vastgoed - vermogensbeheer - verzekeringen
Kolonel Dusartplein 16 bus 1
3500
Hasselt
T.+32 11 93 33 10
E.info@realmart.be
Investeringspand in centrum Hasselt met 4 eenheden.
Appartementsblok voor € 720.000
Demerstraat 27,
3500
Hasselt
Bekijk op kaart
Ref: 2025/VK-029
Dit pand is gelegen in het centrum van Hasselt, midden in dé hoofdwinkelstraat. Het is slechts enkele stappen tot de grote markt en vlakbij de blauwe boulevard. Winkels en school zijn op wandelafstand.
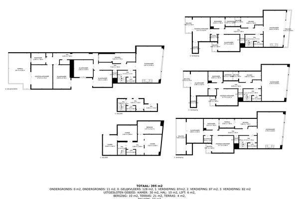
Het gaat hier over 4 appartementen, ideaal als investeringspand.
De eenheden zijn niet meer verhuurd, dus direct klaar om te renoveren.
Appartement 1ste verdieping: Bruikbare vloeroppervlakte 161m² (volgens EPC, met label F);
Hal met gastentoilet, woon- eetkamer, keuken, 4 slaapkamers, badkamer, terras.
Appartement 2e verdieping: Bruikbare vloeroppervlakte 112m² (volgens EPC, met label E);
Hal met gastentoilet, woon- eetkamer, keuken, 2 slaapkamers, badkamer, terras.
Appartement 3e verdieping: Bruikbare vloeroppervlakte 112m² (volgens EPC, met label F);
Hal met gastentoilet, woon- eetkamer, keuken, 2 slaapkamers, badkamer, terras.
Appartement 4e verdieping: Bruikbare vloeroppervlakte 98m² (volgens EPC, met label F);
Hal met gastentoilet, woon- eetkamer, keuken, 2 slaapkamers, badkamer, terras.
Op het gelijkvloers is er een handelspand, deze is niet mee in de verkoop.
Er is een gemeenschappelijke kelder. Mogelijkheid tot de rooftop.
Het gaat hier over 4 appartementen, ideaal als investeringspand.
De eenheden zijn niet meer verhuurd, dus direct klaar om te renoveren.
Appartement 1ste verdieping: Bruikbare vloeroppervlakte 161m² (volgens EPC, met label F);
Hal met gastentoilet, woon- eetkamer, keuken, 4 slaapkamers, badkamer, terras.
Appartement 2e verdieping: Bruikbare vloeroppervlakte 112m² (volgens EPC, met label E);
Hal met gastentoilet, woon- eetkamer, keuken, 2 slaapkamers, badkamer, terras.
Appartement 3e verdieping: Bruikbare vloeroppervlakte 112m² (volgens EPC, met label F);
Hal met gastentoilet, woon- eetkamer, keuken, 2 slaapkamers, badkamer, terras.
Appartement 4e verdieping: Bruikbare vloeroppervlakte 98m² (volgens EPC, met label F);
Hal met gastentoilet, woon- eetkamer, keuken, 2 slaapkamers, badkamer, terras.
Op het gelijkvloers is er een handelspand, deze is niet mee in de verkoop.
Er is een gemeenschappelijke kelder. Mogelijkheid tot de rooftop.
| Naam |
Jan Martens
|
| GSM |
| Prijs |
€ 720.000
|
| EPC |
514 kWh/m2/jaar
|
| EPC ref. |
20240221-0003149534-RES-1
|
| Label |
|
514 kWh/m2/jaar
| Totale opp. grond |
395 m²
|
| Bewoonbare opp. |
395 m²
|
| Elektriciteit |
Ja
|
| Stadswater |
Ja
|
| Verwarming |
Aardgas
|
| Bouwjaar |
1965
|
| Bebouwing |
Gesloten
|
| Algemene staat |
Te renoveren
|
| Elektriciteitscertificaat |
Ja, Niet conform
|
| Bouwvergunning |
Geen bouwvergunning
|
| Verkavelingsvergunning |
Neen
|
| Voorkooprecht |
Neen
|
| As-built attest |
Neen
|
| Beschermd erfgoed |
Ja
|
| Renovatieplicht |
Ja
|