Realmart vastgoed - vermogensbeheer - verzekeringen
Kolonel Dusartplein 16 bus 1 3500 Hasselt
T.+32 11 93 33 10
E.info@realmart.be

Te renoveren appartement met 2 slaapkamers in centrum Hasselt

Appartement voor € 175.000

Demerstraat 27/2, 3500 Hasselt Bekijk op kaart
Ref: 2025/VK-029

Delen

2 slaapkamers
1 badkamer
112 m² woonopp.
EPC: 418 kWh/m2/jaar
bouwjaar: 1965

Dit appartement vinden we op de 2e verdieping, gelegen in het centrum van Hasselt (in de hoofd-winkelstraat). Alle winkels en voorzieningen zijn vlakbij. 

Dit is volledig te renoveren.
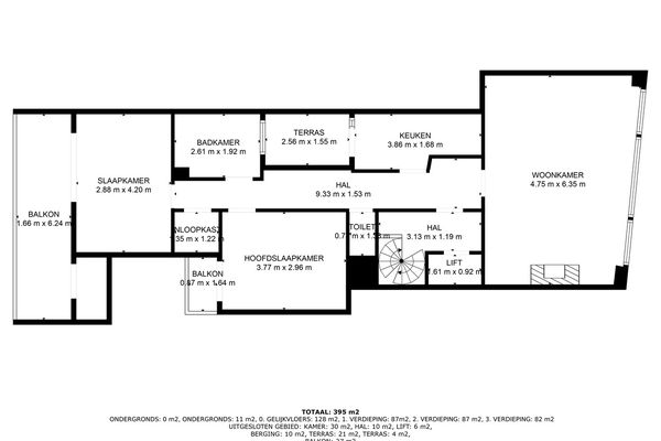
Het appartement betreden we via de hal met apart gastentoilet. Er is een ruime woonkamer en een keuken. 2 slaapkamers en badkamer. Terras aan de achterzijde. Ook is er een kelder inbegrepen.

Met een bruto vloeroppervlakte van 112m² (volgens EPC).
EPC 418kWh/(m² jaar) met renovatieverplichting.

Naam
Jan Martens
GSM
E-mail

Prijs
€ 175.000

Verdieping -1

Kelder

Gelijkvloers

Hal
Toilet
Woon- en eetkamer
Keuken
Slaapkamer
Slaapkamer
Badkamer
Terras

EPC
418 kWh/m2/jaar
EPC ref.
20240416-0003204370-RES-1
Label
epc waarde e
418 kWh/m2/jaar

Bewoonbare opp.
112 m²

Elektriciteit
Ja
Stadswater
Ja
Stookolie
Ja

Verdieping
2
Bouwjaar
1965
Bebouwing
Gesloten
Algemene staat
Te renoveren
Elektriciteitscertificaat
Ja, Niet conform
Lift
Ja

Overstromingsgevoeligheid
Niet overstromingsgevoelig
Afgebakende zone
Niet van toepassing
G(ebouw)-score info
B
P(erceel)-score info
B
Stedenbouwkundige bestemming
Woongebied met cult., historische en/of esthetische waarde
Dagvaarding voor stedenbouwkundige overtreding
Geen rechterlijke herstelmaatregel of bestuurlijke maatregel opgelegd
Bouwvergunning
Bouw vergund
Verkavelingsvergunning
Ja
Voorkooprecht
Neen
As-built attest
Neen
Beschermd erfgoed
Niet ingegeven
Renovatieplicht
Ja